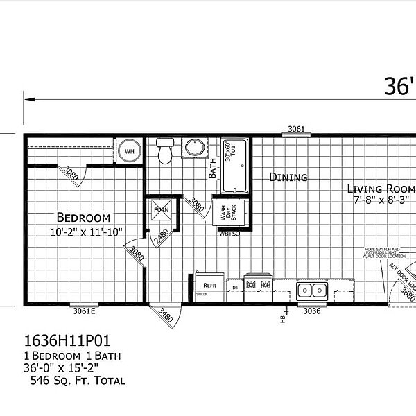
Lake Manor / 1636H11P01

3D tour

No 3d Tour Available

floor plan

details

Manufactured

BEDS: 1     BATHS: 1.00     SQ FT: 546     W X L: 15′ 2″ x 36′ 0″

BUILT BY: Champion Homes

The Lake Manor / 1636H11P01 built by Champion Homes is a cozy and well-planned home that makes great use of every square foot. With 546 square feet, 1 bedroom, and 1 bathroom, The 1636H11P01 offers a layout that feels open and comfortable. The kitchen flows into the dining area and living room, creating a bright space for relaxing or spending time with friends. The private bedroom provides a quiet retreat with easy access to the full bath. Smart design and efficient living come together in The 1636H11P01, making it a charming home that is easy to enjoy every day.
Share this Home

have a question about this home?

floor plan specifications

No specification data available

tours and videos

gallery

PLEASE NOTE:

All sizes and dimensions are nominal or based on approximate builder measurements. 3D Tours and photos may include dealer and/or factory installed options. Piedmont Homes of Burlington reserves the right to make changes due to any changes in material, color, specifications, and features at any time without notice or obligation.